Google News Mê mẩn nhà cấp 4 mái ngói chữ U có hồ nước giữa nhà
TPO - Không gian công trình được phát triển theo bố cục nhà truyền thống, các phòng chức năng nối với nhau bằng hành lang và ngăn cách bởi hồ nước.
 |
| Ngôi nhà này nằm ở ranh giới giữa huyện Củ Chi (TP. Hồ Chí Minh) và tỉnh Tây Ninh - vùng nông thôn đang chuyển mình với hình thức canh tác mới và sự xuất hiện ngày càng nhiều của các trang trại công nghệ cao. |
 |
| Đây cũng là khu vực đang có tốc độ tăng dân số nhanh chóng, một phần do người dân thành thị muốn khám phá cuộc sống nông thôn và “chạy khỏi” các thành phố bận rộn, động đúc. Từ đó xuất hiện nhiều mô hình nhà ở mới và dần phá vỡ hình thức nhà ở truyền thống vốn rất hài hòa với thiên nhiên, gắn bó lâu đời với người dân địa phương. |
 |
| Đó là những mẫu nhà ở nông thôn Nam Bộ quần tụ như ốc đảo, xung quanh là vườn cây dừa, cau và hơn nữa là những cánh đồng lúa bạt ngàn, vì thế một gia chủ quyết định nhờ các kiến trúc sư giúp mình thiết kế ngôi nhà mang đậm nét truyền thống địa phương. Và nhà “An” ra đời. |
 |
| Nhà “An” được thiết kế dành cho gia đình gồm 3 thế hệ, với mong muốn người con gìn giữ, kế thừa ngôi nhà 30 năm của tổ tiên và là nơi để ông bà, cha mẹ, con cháu sum họp cuối tuần. |
 |
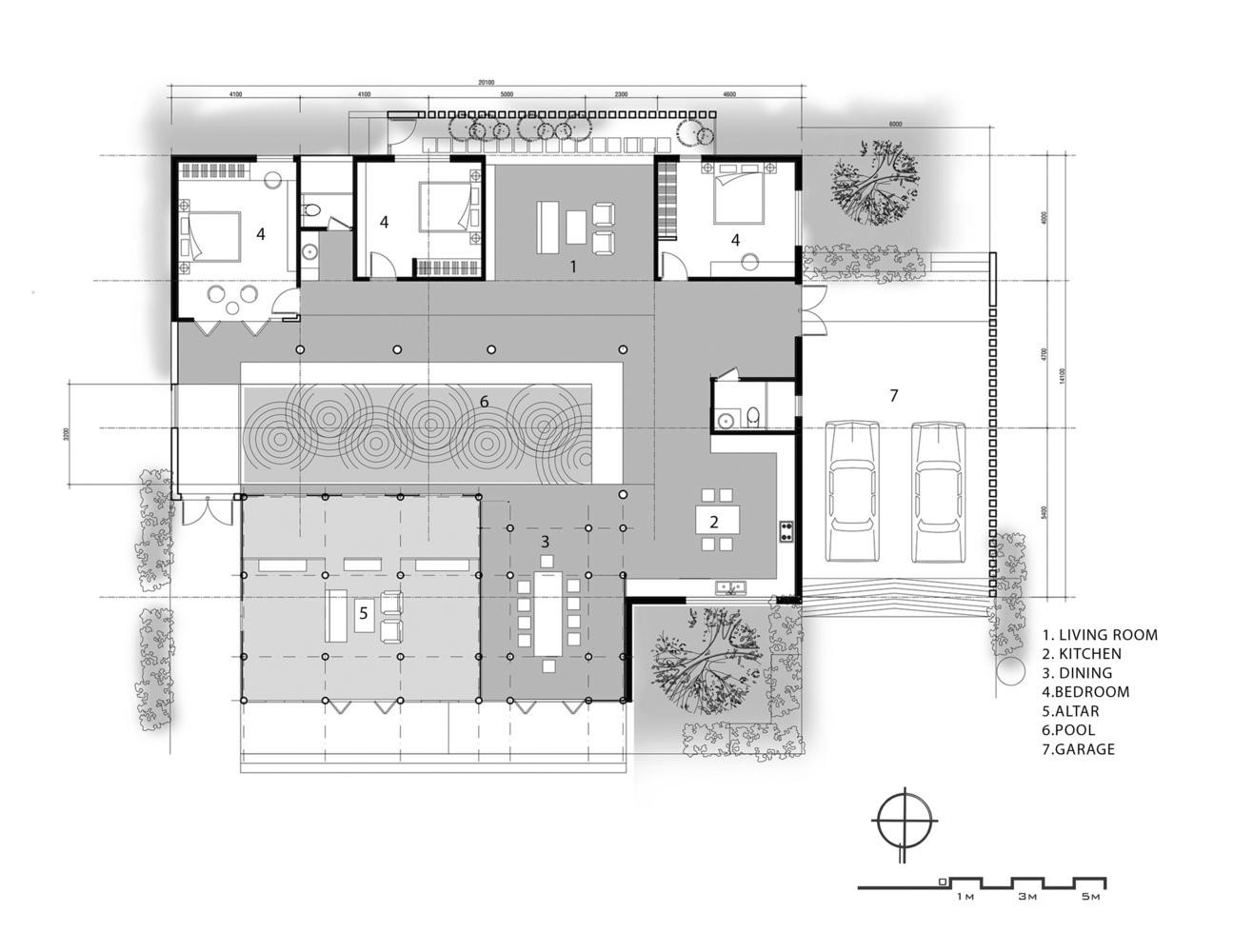
| Không gian của ngôi nhà được phát triển theo bố cục nhà truyền thống với nhà thờ tổ (dựng lại từ ngôi nhà cổ những năm 1980) và nhà sinh hoạt nối với nhau bằng hành lang và ngăn cách bằng hồ nước. |
 |
| Ngôi nhà như một ốc đảo rộng 2000m2, chủ động đóng mở để lấy gió từ bên ngoài và mở hoàn bên trong với hồ nước làm trung tâm. |
 |
| Phòng bếp và phòng ăn là khu vực chuyển tiếp giữa khu vực phòng thờ và khu sinh hoạt chung. |
 |
 | | Hành lang và phòng khách là không gian mở bên trong, thông với các phòng ngủ của ông bà, bố mẹ, các cháu. |  | | Phòng ngủ vẫn giữ được sự riêng tư cần thiết và liên kết với các không gian chung như hành lang, hồ nước, sân, phòng ăn, bếp tạo không gian giao tiếp gần gũi giữa các thành viên. |  | | Hầu hết các đồ nội thất bằng gỗ trong nhà đều có tuổi đời hơn nửa thế kỷ, được tận dụng từ những món đồ nội thất cũ được chuyển giao qua nhiều thế hệ và được bảo quản như những vật gia bảo.  | | Mái ngói vừa có tác dụng làm mát ngôi nhà vừa lưu giữ nét mộc mạc, giản dị của ngôi nhà Việt xưa. | |  | | Ngôi nhà được bao quanh bởi một ruộng lúa thâm canh theo mùa và một số công đất trồng dưa. Đây cũng chính là nơi an cư lạc nghiệp như mong muốn của gia chủ.  | | Bản vẽ thiết kế của ngôi nhà. | | |